В предыдущем материале мы говорили о применении метода индивидуального (построечного) калькулирования при проектировании и строительстве объектов Кузбасса в целом, и основных причинах удорожания сметной стоимости строительства, в частности.
Прежде всего, это сокращение сроков строительства. В результате изучения в 1960-1966 гг. увеличения сметной стоимости строительства по 108 предприятиям угольной промышленности была установлена следующая зависимость увеличения сметной стоимости от продолжительности строительства:
1) по новым шахтам, находящимся в строительстве до 7 лет - 10%;
2) по шахтам строящимся:
- до 10 лет - 50%;
- до 13 лет - 74%;
- до 20 лет - 163%.
3) по реконструируемым шахтам с продолжительностью реконструкции:
- до 6 лет - 32%;
- до 8 лет - 53%;
- до 10 лет - 85%;
- до 12 лет - 124%.
В последствии эти же данные были получены при анализе результатов реконструкции действующих шахт.
На основании анализа фактических показателей реконструкции 16 действующих шахт Кузнецкого бассейна было установлено, что сроки реконструкции в 2-3 раза превышали нормативные. За рассматриваемый период не было случая строительства шахты в нормативные сроки. В среднем продолжительность реконструкции шахт Кузбасса составляла 8-10 лет, а по некоторым - 13-15лет (шахты Комсомолец, им. Калинина).
Условный экономический ущерб по отдельным реконструированным шахтам составлял от 3 до 9 млн. р. или до 80% от сметной стоимости строительства. В целом по 16-ти проанализированным шахтам экономический ущерб составил 49 млн. р.

По находившимся в то время в реконструкции шахтам общий экономический ущерб из-за затяжного строительства оценивался порядка 100 млн. р. или 20% сметной стоимости строительства этих объектов.
Все это говорило о том, что сокращение сроков реконструкции являлось важнейшей народно-хозяйственной задачей.
Особенно это касалось Кузнецкого бассейна, шахтный фонд которого был представлен преимущественно старыми шахтами, введенными в эксплуатацию 15-20 и более лет тому назад, при этом около 40% из них находились в эксплуатации более 30 лет.
Большинство шахт практически освоили максимально возможные производственные мощности и дальнейшее их увеличение возможно было только за счет осуществления реконструкции. В среднем по угольной промышленности в то время ежегодно около 30% предприятий вводилось в работу после строительства или реконструкции.
Совершенствование объёмно-планировочных решений
Другим направлением являлось совершенствование объёмно планировочных решений объектов. Прежде всего это максимальная блокировка производственных и вспомогательных зданий и наиболее компактное их размещение на промышленной площадке. Блокировка объектов позволяла сократить площадь застройки до 60%, число строительных объектов и количество типоразмеров конструкций более чем в 2 раза, значительно уменьшить протяжённость коммуникаций и снизить сметную стоимость строительства до 20%.
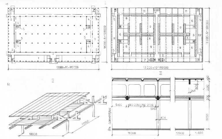
Рассмотрим примеры блокировки по двум крупнейшим шахтам не только Кузбасса, но и страны - Распадской и им. Ленина.
По шахте Распадская предусматривалась следующая блокировка основных зданий. На площадке угольного комплекса - надшахтное здание наклонных стволов в блоке с машинными зданиями, материальный склад в блоке с мехмастерскими, компрессорная в блоке с материальном складом, здание дежурного по станции и пункт технического осмотра вагонов.
- На главной промплощадке - блок надшахтного здания, включающий помещение обмена вагонеток, механические мастерские, склад оборудования, электро подстанцию и проборазделочную.
- На площадке ствола № 3 - блок надшахтного здания вертикального ствола, включающий пункт перегрузки, склад оборудования и материалов, мастерские, электроподстанцию с распредустройством, аппаратную и диспетчерскую.
В результате такой блокировки по шахте Распадская удельные затраты на промздания и сооружения составили 2,67 р./т. в то время как для обычных решений они находились в пределах 3-4 р./т, т.е. на 10-30% выше.
На крупнейшей шахте им. Ленина (проектной производительностью 12 млн. т. угля в год) предусматривалась также блокировка основных зданий. Например, блок надшахтного здания скипоклетевого ствола включал здания подъёмных машин, слесарно-сборочный цех, электроремонтный цех, механический цех, проборазделочную и горно-вспомагательную службы (мастерские, склады и т.д.). Удельные затраты на промздания и сооружения составляли 2,32 р./т.
Преимущества блокировки наглядно видны на примере сравнения, этих двух шахт.
Более эффективное использование капитальных вложений при строительстве обогатительных фабрик достигалось применением зданий павильонного типа, позволяющих осуществлять агрегатную сборку технологического оборудования.
В основу объёмно-планировочных и конструктивных решений павильонных зданий были заложены принципы соответствия единой модульной системе, экономного расхода материалов, индустриализации
строительства, рационального объёма и соответствия требованиям современной архитектурной выразительности.
Расчётами было установлено, что при равных строительных объёмах и площадях застройки количество типоразмеров сборных железобетонных конструкций уменьшалось для павильонного решения в два раза, а стоимость 1 м3 здания на 20-25%.
Здания павильонного типа по приёмке, первичной переработке и погрузке угля имели строительный объём на 30%, а сметную стоимость на 25% меньше по сравнению с многоэтажным решением. Например, здание павильонного типа обогатительной фабрики (ОФ) при шахте «Нагольчин- ская» и 1-2 (проект Днепрогипрошахта) по сравнению с ОФ «Обуховская- Западная» позволило сократить количество зданий и сооружений в 2 раза, конвейерных мостов - в 3 раза и стоимость 1 м3 здания с 20,4 до 14,5 р. на 29%, а приведённые затраты в период эксплуатации - на 667 тыс. руб.-год.
Технико-экономические расчёты подтверждали, что антресольные павильоны экономичнее обычных, имеющих по всему периметру двухветвенные колонны. При этом с повышением высоты зданий повышается и эффективность антресольных павильонов по сравнению с обычными.
Наибольший эффект достигается при антресольных 7 павильонах шириной 48 м (6+36+6). Именно по такой схеме был запроектирован Сибгипрошахтом главный корпус Распадской ЦОФ комбината Южкузбассуголь. Стоимость основных конструкций по сравнению с обычным павильоном снизилась на 7%, а приведённые затраты с учётом эксплуатационных расходов на отопление - на 15%.
Основными технико-экономическими направлениями развития угольной промышленности предусматривалось дальнейшее повышение уровня автоматизации производственных процессов, что позволяло повысить производительность труда за счёт сокращения обслуживающего персонала, снизить сметную стоимость и сократить сроки строительства за счёт размещения технологического оборудования на открытых площадках.
Снижение сметной стоимости строительства: технологическое оборудование на открытых площадках
Размещение технологического оборудования на открытых площадках и этажерках или в зданиях облегчённого типа с неутеплёнными ограждениями обеспечивало снижение сметной стоимости строительства до 20%.
При проектировании предприятий угольной промышленности обязательно размещалось на открытых площадках такое оборудование, как маневровые устройства, поверхностные подстанции, оборудование складов крепёжных материалов, брёвнотаски, сбрасыватели, воздухосборники компрессорных установок, краны козловые. Например, установка маневровых устройств на открытой площадке обеспечивала снижение стоимости по сравнению с аналогом, имевшим их укрытие, до 93%.
Размещение оборудования в зданиях облегчённого типа снижало капитальные затраты на 15-20%. Например, вентиляторная установка и компрессорная станция в здании облегчённого типа на 15% была меньше по стоимости зданий, выполненных в обычном решении, а расположение низковольтной аппаратуры главных понизительных и трансформаторных подстанций в зданиях облегчённого типа позволяло снизить стоимость по сравнению с типовым проектом на 20%.
Внедрение новых эффективных стройматериалов
Основные технико-экономические направления развития угольной промышленности предусматривали применение на строившихся и проектируемых угольных предприятиях новых эффективных строительных материалов: керамзита, алюминия, газобетона, стеклоблоков, фенопласта и изделий из синтетических материалов. Так, например, фенопласт не только в 5-6 раз легче, но и дешевле применяемых в то время плитных изделий, что и позволило повысить производительность труда на кровельных работах до 10%.

Проведённые расчёты для главного корпуса Осинниковской ЦОФ показали, что применение в качестве утеплителя фенопласта вместо пенобетона позволило снизить стоимость строительных работ только за счёт разницы сметных цен на 0,57%.
Применение экономичных видов металлопроката, высокопрочных сталей и труб для изготовления стальных конструкций позволяло обеспечить экономию расхода металла на 5-10% и снизить сметную стоимость строительства.
Например, применение высокопрочной арматуры для главного корпуса Осинниковской ЦОФ уменьшало стоимость строительных работ на 0,3%, а применение крепей из высокопрочных сталей при проведении горнопроходческих работ позволяло снизить их стоимость до 0,4%.
Определённые резервы в снижении сметной стоимости имелись и в более широком применении сборных железобетонных конструкций из высококачественного бетона. Например, применение высококачественного бетона марки 500 вместо марки 300 при сооружении главного корпуса Осинниковской ЦОФ позволяло снизить стоимость строительных работ на 0,4%.
Применение асбоцементных волнистых листов усиленного профиля с эффективным утеплителем при строительстве зданий облегчённого типа шахтной поверхности позволяло снизить вес конструкций в 20-30 раз, их стоимость на 10-30% и сократить трудозатраты на 10-20%.